logo
Zamówienia publiczne » Maj 2011
06/05/2011 Ogłoszenie o zamówieniu - DMP.22/2011

Dostawa, montaż i uruchomienie nowej wagi samochodowej oraz remont istniejącej wagi w Przedsiębiorstwie Gospodarki Komunalnej i Mieszkaniowej Sp. z o. o. w Inowrocławiu

TypRozmiarPobierzKomentarzData dodaniaLicznik 
?26.2 KB POBIERZOgłoszenie o zamówieniu2011-05-06 12:20:15497
.DOC276.5 KB POBIERZSpecyfikacja istotnych warunków zamówienia2011-05-06 12:21:40713
?14.9 KB POBIERZZmiana terminu składania ofert2011-05-13 09:09:29556
graf.254.7 KB POBIERZOdpowiedź na zapytania2011-05-16 12:47:47530
graf.247.6 KB POBIERZs.22011-05-16 12:48:06619
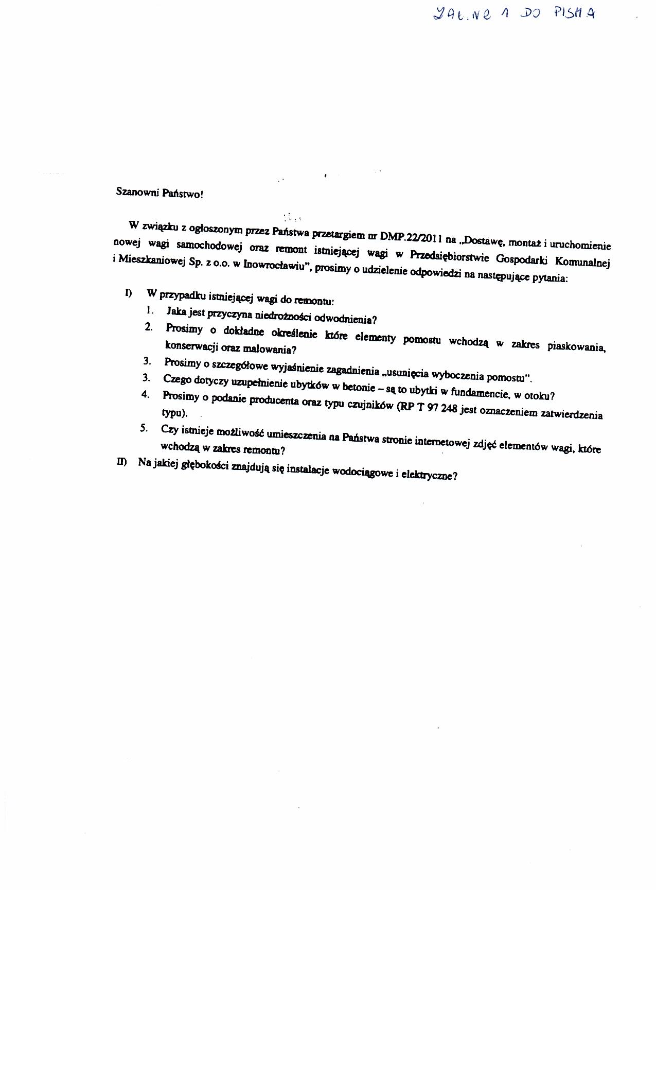
graf.219.9 KB POBIERZTreść pytań2011-05-16 12:48:27531
graf.265.2 KB POBIERZs.22011-05-16 12:48:40522
graf.189 KB POBIERZs.32011-05-16 12:48:52494
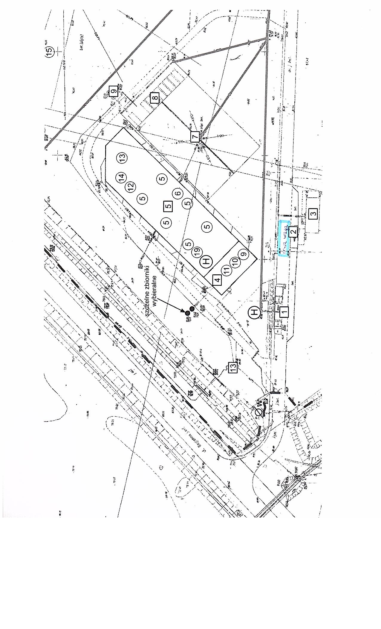
graf.335.1 KB POBIERZMapka2011-05-16 12:49:11532
graf.197.9 KB POBIERZUzupełnienie wyjaśnień2011-05-16 14:24:08560
graf.240.1 KB POBIERZOdpowiedzi II- i zmiana terminu2011-05-17 09:53:34544
graf.153.9 KB POBIERZTreść pytań II2011-05-17 09:53:48553
graf.280.5 KB POBIERZOdpowiedzi III2011-05-19 10:37:45475
graf.137.2 KB POBIERZTreść pytań III2011-05-19 10:38:48498
graf.2193.9 KB POBIERZFot.-12011-05-19 10:39:39519
graf.1342.2 KB POBIERZFot.-22011-05-19 10:40:24557
graf.1514.9 KB POBIERZFot.-32011-05-19 10:41:02491
graf.2046.9 KB POBIERZFot. - 42011-05-19 10:41:52504
graf.1876.5 KB POBIERZFot. - 52011-05-19 10:42:37518
graf.266.8 KB POBIERZWybór najkorzystniejszej oferty2011-06-02 12:24:35463
graf.117.2 KB POBIERZs.22011-06-02 12:24:46465
?18.5 KB POBIERZOgłoszenie o udzieleniu zamówienia- BZP nr 163091-20112011-06-13 08:27:16426

Autor : kg
ZredagowaÅ‚(a) : Krystyna Glonek
Data wprowadzenia : 2011-05-06 12:18:50
Data ostatniej modyfikacji : 2011-05-06 12:18:50
Liczba wyÅ›wietleÅ„ : 1922



licznik odwiedzin: 5741602