logo
Zam贸wienia publiczne » Listopad 2008
19/11/2008 Og艂oszenie o wszcz臋ciu post臋powania.

"Wymiana stolarki okiennej drewnianej na PCV w mieszkaniach komunalnych".

Numer sprawy: DMP. 68/2008聽聽聽聽聽聽聽聽聽聽聽聽聽聽聽聽聽聽聽聽聽聽聽聽聽聽聽聽聽聽聽聽聽Inowroc艂aw, dnia 19 listopada 2008 r.

OG艁OSZENIEOWSZCZ臉CIU POST臉POWANIA

Numer og艂oszenia w BZP: 247564 - 2008; data zamieszczenia 19/11//2008

Na stronie internetowej: 19/11/2008

Zamieszczenie obowi膮zkowe

Zam贸wienia publiczne

Nie przys艂uguje odwo艂anie

1. Zamawiaj膮cy: Przedsi臋biorstwo Gospodarki Komunalnej i Mieszkaniowej Sp. z o.o. w Inowroc艂awiu

Ulica: ks. Piotra Wawrzyniaka 33

Kod: 88-100, Miejscowo艣膰: Inowroc艂aw

Telefon / faks 052 35 64聽304

e-mail: pgkim@poczta.internetdsl.pl

S膮d Rejonowy w Bydgoszczy, XIII Wydzia艂 Gospodarczy Krajowego Rejestru S膮dowego Numer KRS 0000059483

REGON: 091581150 NIP: 556-080-08-85

Kapita艂 Zakladowy Sp贸艂ki: 2聽518聽500, 00 z艂

Konto: Bank Zachodni WBK S. A.O/ Inowroc艂aw聽聽聽聽聽 88 1090 1069 0000 0000 0701 3956

2. Nazwa nadana zam贸wieniu: "Wymiana stolarki okiennej drewnianej na PCV w mieszkaniach komunalnych".

2.1. Wsp贸lny S艂ownik Zam贸wie艅 (CPV): 45.42.11.32-8 - instalowanie okien

Tryb post臋powania: przetarg nieograniczony

Rodzaj zam贸wienia: robota budowlana

2.2. Nie dopuszcza si臋 sk艂adania ofert wariantowych.

2.3. Zamawiaj膮cy nie przewiduje zawarcia umowy ramowej, jak r贸wnie偶 nie dokona wyboru oferty najkorzystniejszej z zastosowaniem aukcji elektronicznej.

2.4. Zamawiaj膮cy nie przewiduje mo偶liwo艣ci ustanowienia dynamicznego systemu zakup贸w.

2.5. Zam贸wienie obejmuje: demonta偶 istniej膮cej stolarki wraz z wywozem i utylizacj膮, monta偶 stolarki okiennej, obr贸bka murarska o艣cie偶y zewn臋trznych i wewn臋trznych, malowanie o艣cie偶y wewn臋trznych.

2.5. Zam贸wienie zosta艂o podzielone na trzy zadania z mo偶liwo艣ci膮 sk艂adania ofert cz臋艣ciowych, w tym:

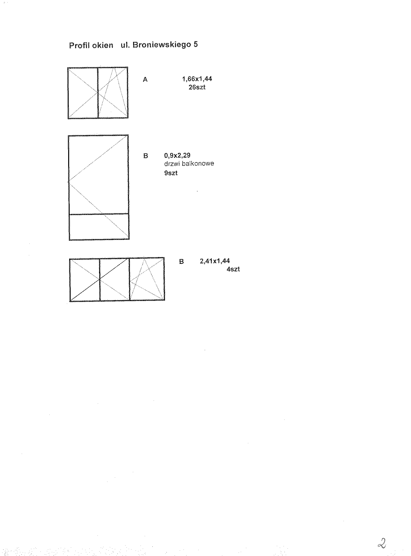
Zad. I. - Broniewskiego 5,

obejmuje: wymian臋 39 szt. okien.

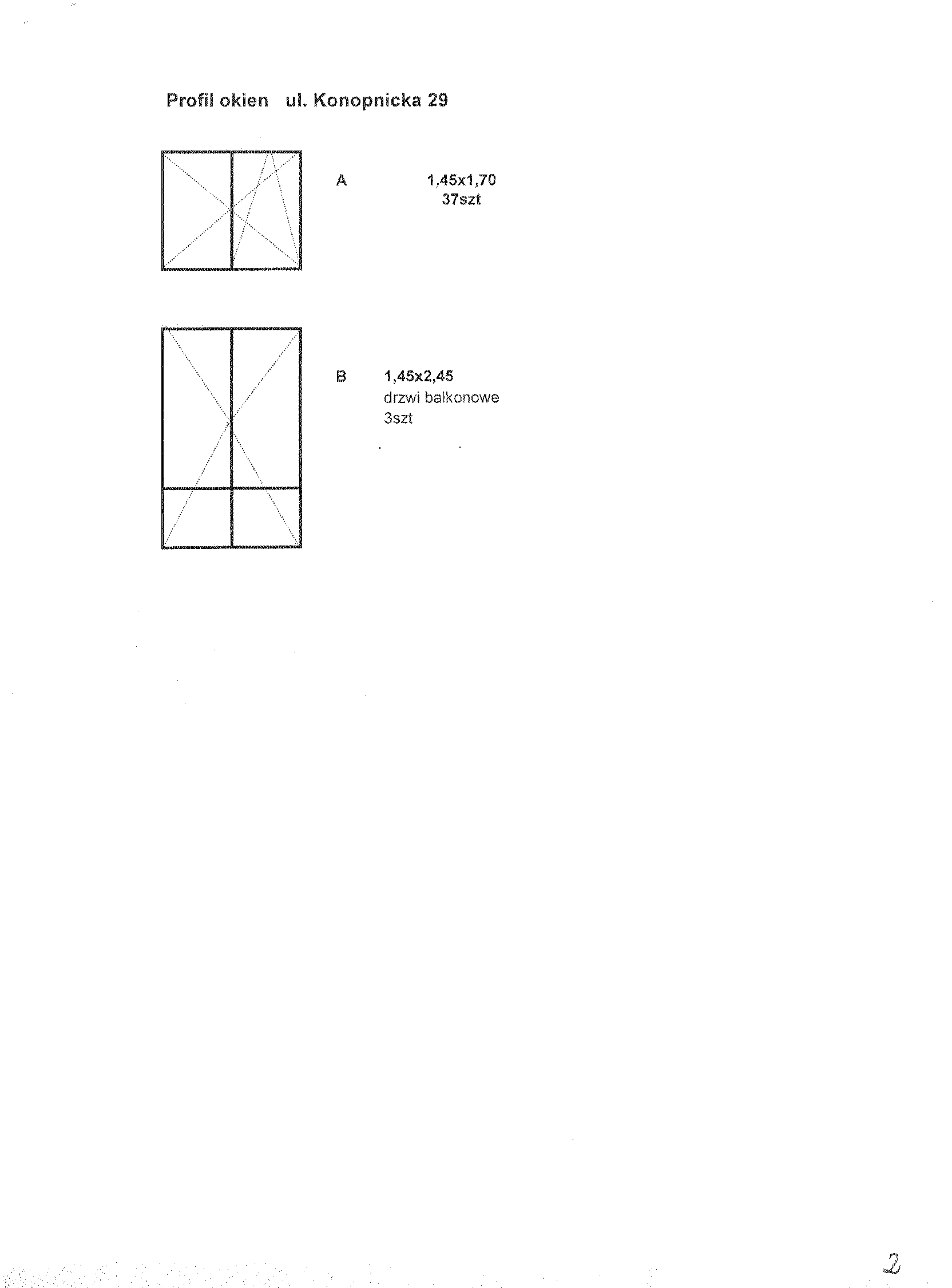
Zad. II. - Konopnickiej 29,

obejmuje: wymian臋 40 szt. okien.

Zad. III. - Krzymi艅skiego 10,

obejmuje: wymian臋 44 szt. okien.

2.6. Informacje dodatkowe: Zamawiaj膮cy dopuszcza mo偶liwo艣膰 zmiany terminu realizacji zam贸wienia w przypadku, gdy nast膮pi膮 trudno艣ci z wej艣ciem do danego lokalu, np. w przypadku d艂u偶szej nieobecno艣ci ich mieszka艅c贸w.

3. Terminy wykonania: 2 miesi膮ce od podpisania umowy (na ka偶de zadanie).

4. Osobami uprawnionymi do kontakt贸w z wykonawcami s膮:

a) w cz臋艣ci formalnej zam贸wienia - Krystyna Glonek, tel.052 35 64 304,

b) w cz臋艣ci merytorycznej zam贸wienia - Dorota Ma艂ek, tel. 052聽35 64聽320.

聽聽聽聽

5. Adres strony internetowej, na kt贸rej dost臋pna jest specyfikacja istotnych warunk贸w zam贸wienia: http://pgkim-inowroclaw.samorzady.pl

6. Op艂ata za otrzymanie specyfikacji istotnych warunk贸w zam贸wienia b臋dzie pokrywa膰 jedynie koszty jej druku oraz przekazania.

7. Wykonawca zainteresowany post臋powaniem powinien z艂o偶y膰 wniosek u zamawiaj膮cego z podaniem wszystkich danych firmy - niezb臋dnych do przekazywania zmian i zapyta艅 dotycz膮cych powy偶szego post臋powania.

8. O udzielenie zam贸wienia mog膮 ubiega膰 si臋 wy艂膮cznie Wykonawcy, kt贸rzy:

a) posiadaj膮 uprawnienia do wykonywania okre艣lonej dzia艂alno艣ci lub czynno艣ci, je偶eli ustawy nak艂adaj膮 obowi膮zek posiadania takich uprawnie艅,

b) posiadaj膮 niezb臋dn膮 wiedz臋 i do艣wiadczenie oraz potencja艂 techniczny, a tak偶e dysponuj膮 osobami zdolnymi do wykonania zam贸wienia,

c) znajduj膮 si臋 w sytuacji ekonomicznej i finansowej zapewniaj膮cej wykonanie zam贸wienia,

d) nie podlegaj膮 wykluczeniu z post臋powania o udzielenie zam贸wienia.

Zamawiaj膮cy oceni spe艂nienie warunk贸w wymienionych w niniejszym rozdziale na podstawie z艂o偶onych przez Wykonawc臋, do oferty, o艣wiadcze艅 i dokument贸w.

Ocena spe艂niania warunk贸w dokonana zostanie na zasadzie:

聽聽聽聽聽聽聽聽聽聽聽聽聽聽聽聽聽聽聽聽聽聽聽聽聽聽聽聽聽聽聽聽聽聽聽聽聽聽聽聽聽聽聽聽聽 spe艂nia/ nie spe艂nia

9. W celu potwierdzenia, 偶e Wykonawca posiada uprawnienie do wykonywania okre艣lonej dzia艂alno艣ci lub czynno艣ci oraz nie podlega wykluczeniu na podstawie art. 24 ustawy z dnia 29 stycznia 2004 r. - Prawo zam贸wie艅 publicznych, zamawiaj膮cy 偶膮da, nast臋puj膮cych dokument贸w:

a) aktualnego odpisu z w艂a艣ciwego rejestru albo aktualnego za艣wiadczenia o wpisie do ewidencji dzia艂alno艣ci gospodarczej, je偶eli odr臋bne przepisy wymagaj膮 wpisu do rejestru lub zg艂oszenia do ewidencji dzia艂alno艣ci gospodarczej, wystawionego nie wcze艣niej ni偶 6 miesi臋cy przed up艂ywem terminu sk艂adania ofert;

b) o艣wiadczenie wykonawcy, 偶e nie posiada zaleg艂o艣ci podatkowej wobec Naczelnika Urz臋du Skarbowego,

c) o艣wiadczenie wykonawcy, 偶e nie posiada zaleg艂o艣ci wobec Zak艂adu Ubezpiecze艅 Spo艂ecznych w op艂acaniu sk艂adek na ubezpieczenie spo艂eczne, zdrowotne oraz Fundusz Pracy.

9.1.W celu potwierdzenia posiadania przez wykonawc臋 niezb臋dnej wiedzy i do艣wiadczenia oraz os贸b zdolnych do wykonania zam贸wienia, zamawiaj膮cy 偶膮da nast臋puj膮cych dokument贸w:

a) wykazu wykonanych rob贸t budowlanych w okresie ostatniego 1 roku, przed dniem wszcz臋cia post臋powania o udzielenie zam贸wienia, z podaniem ich warto艣ci oraz daty i miejsca wykonania oraz za艂膮czeniem dokument贸w potwierdzaj膮cych, 偶e roboty te zosta艂y wykonane nale偶ycie, z艂. nr 2 do siwz (minimum 1 referencja),

9.2. W celu potwierdzenia, 偶e wykonawca znajduje si臋 w sytuacji ekonomicznej i finansowej zapewniaj膮cej wykonanie zam贸wienia zamawiaj膮cy 偶膮da nast臋puj膮cych dokument贸w:

a) polisy, a w przypadku jej braku innego dokumentu potwierdzaj膮cego, 偶e wykonawca jest 聽聽聽ubezpieczony od odpowiedzialno艣ci cywilnej w zakresie prowadzonej dzia艂alno艣ci.

9.3. Kosztorys ofertowy, kt贸ry musi by膰 integraln膮 cz臋艣ci膮 z艂o偶onej oferty. Wykonawca mo偶e przyj膮膰 dowoln膮 form臋 i podstaw臋 wyceny rob贸t.

9.4. Kserokopi臋 atestu na okna, certyfikat (je艣li posiada) oraz atest na profile okienne.

9.5.Wype艂nione nast臋puj膮ce za艂膮czniki:

a) o艣wiadczenie w trybie art. 22 ustawy Pzp (za艂. nr 3 do siwz),

b) formularz ofertowy wykonawcy (za艂. nr 1 do swiz).

10. Miejsce i termin sk艂adania ofert: sekretariat Przedsi臋biorstwa Gospodarki Komunalnej i Mieszkaniowej Sp. z o.o., ul. ks. Piotra Wawrzyniaka 33, 88-100 Inowroc艂aw, do dnia 11 grudnia 2008 r. do godz. 9:50.

11. Kryteria wyboru oferty(w % ): 

a) cena wykonania zam贸wienia - 80 %

b) gwarancja - 20 %.

12. Zamawiaj膮cy nie wymaga wadium.

13.Miejsce i termin otwarcia ofert: Przedsi臋biorstwo Gospodarki Komunalnej i Mieszkaniowej Sp. z o.o., ul. ks. Piotra Wawrzyniaka 33, 88-100 Inowroc艂aw dnia 11 grudnia 2008 r. o godz. 10:00 (salka konferencyjna).

14.Termin zwi膮zania ofert膮: 30 dni .

15. Zamawiaj膮cy nie wymaga wniesienia zabezpieczenia nale偶ytego wykonania umowy (znwu).

16. Zamawiaj膮cy nie przewiduje mo偶liwo艣ci udzielenia zam贸wie艅 uzupe艂niaj膮cych, o kt贸rych mowa w art. 67 ust. 1 pkt 6.

聽聽聽聽聽聽聽聽聽聽聽聽聽聽聽聽聽聽聽聽聽聽聽聽聽聽聽聽聽聽聽聽聽聽聽聽聽聽聽聽聽聽聽聽聽聽聽聽聽聽聽聽聽聽聽聽聽聽 聽聽聽聽聽聽聽聽聽聽聽聽聽聽聽聽聽聽聽聽聽聽聽聽聽聽聽聽聽聽聽聽聽聽聽聽聽聽聽聽聽聽聽聽聽聽聽聽聽聽聽聽聽聽聽聽聽聽聽聽聽聽聽聽聽聽聽聽聽聽聽聽聽聽聽聽聽聽聽聽聽 Podpis:

TypRozmiarPobierzKomentarzData dodaniaLicznik 
.DOC205.5 KB POBIERZSpecyfikacja istotnych warunk贸w zam贸wienia.2008-11-19 12:31:44458
.DOC103.5 KB POBIERZZa艂. nr 5 do siwz- STWiOR2008-11-19 12:33:07468
graf.511.8 KB POBIERZZa艂. nr 6 do siwz - zad. I.2008-11-19 12:33:34404
graf.180.8 KB POBIERZZad. I.2008-11-19 12:34:12461
graf.265.6 KB POBIERZZad. I.2008-11-19 12:34:32423
graf.485.1 KB POBIERZZa艂. nr 6 do siwz- Zad. II.2008-11-19 12:35:04384
graf.141.9 KB POBIERZZad. II.2008-11-19 12:35:31386
graf.229 KB POBIERZZad. II.2008-11-19 12:36:06372
graf.512.9 KB POBIERZZa艂. nr 6 do siwz- Zad. III.2008-11-19 12:36:58392
graf.180.3 KB POBIERZZad. III.2008-11-19 12:37:16456
graf.206.7 KB POBIERZZad. III.2008-11-19 12:38:03431
graf.751.7 KB POBIERZOdpowiedzi na zapytania.2008-12-05 11:35:21402
graf.409.2 KB POBIERZTre艣膰 pyta艅2008-12-05 11:35:45364
graf.840.7 KB POBIERZZawiadomienie o wyborze najkorzystniejszej oferty.2008-12-23 12:49:49392
graf.851.6 KB POBIERZZbiorcze zestawienie ofert - s. 12008-12-23 12:50:22383
graf.983.6 KB POBIERZs.22008-12-23 12:50:50379
graf.776.9 KB POBIERZs.32008-12-23 12:51:16369
graf.483.2 KB POBIERZOferta wykluczona2008-12-23 12:51:40393
graf.486 KB POBIERZOferty odrzucone - s.12008-12-23 12:52:07350
graf.397.9 KB POBIERZs.22008-12-23 12:52:42405
graf.391.9 KB POBIERZs.32008-12-23 12:53:01409
graf.606 KB POBIERZStreszczenie oceny i por贸wnanie z艂o偶onych ofert- s.12008-12-23 12:53:44415
graf.474.6 KB POBIERZs.22008-12-23 12:54:03360
graf.616.9 KB POBIERZs.32008-12-23 12:54:30361
graf.518.1 KB POBIERZs.42008-12-23 12:54:51395
graf.627.2 KB POBIERZs.52008-12-23 12:55:25406
graf.465.4 KB POBIERZs.62008-12-23 12:55:42412
graf.880.4 KB POBIERZOg艂oszenie o udzieleniu zam贸wienia BZP nr 2352-20092009-01-08 13:11:02411

Autor : kg
Zredagowa艂(a) : Krystyna Glonek
Data wprowadzenia : 2008-11-19 12:30:32
Data ostatniej modyfikacji : 2008-11-19 12:30:32
Liczba wy艣wietle艅 : 1544



licznik odwiedzin: 5742239